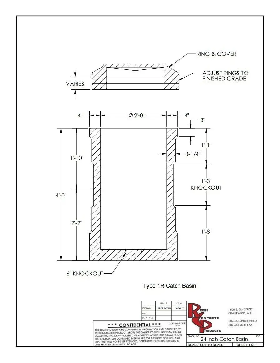
Stormwater Infrastructure Design and Concrete Solutions in Kennewick, WA, and Surrounding Areas